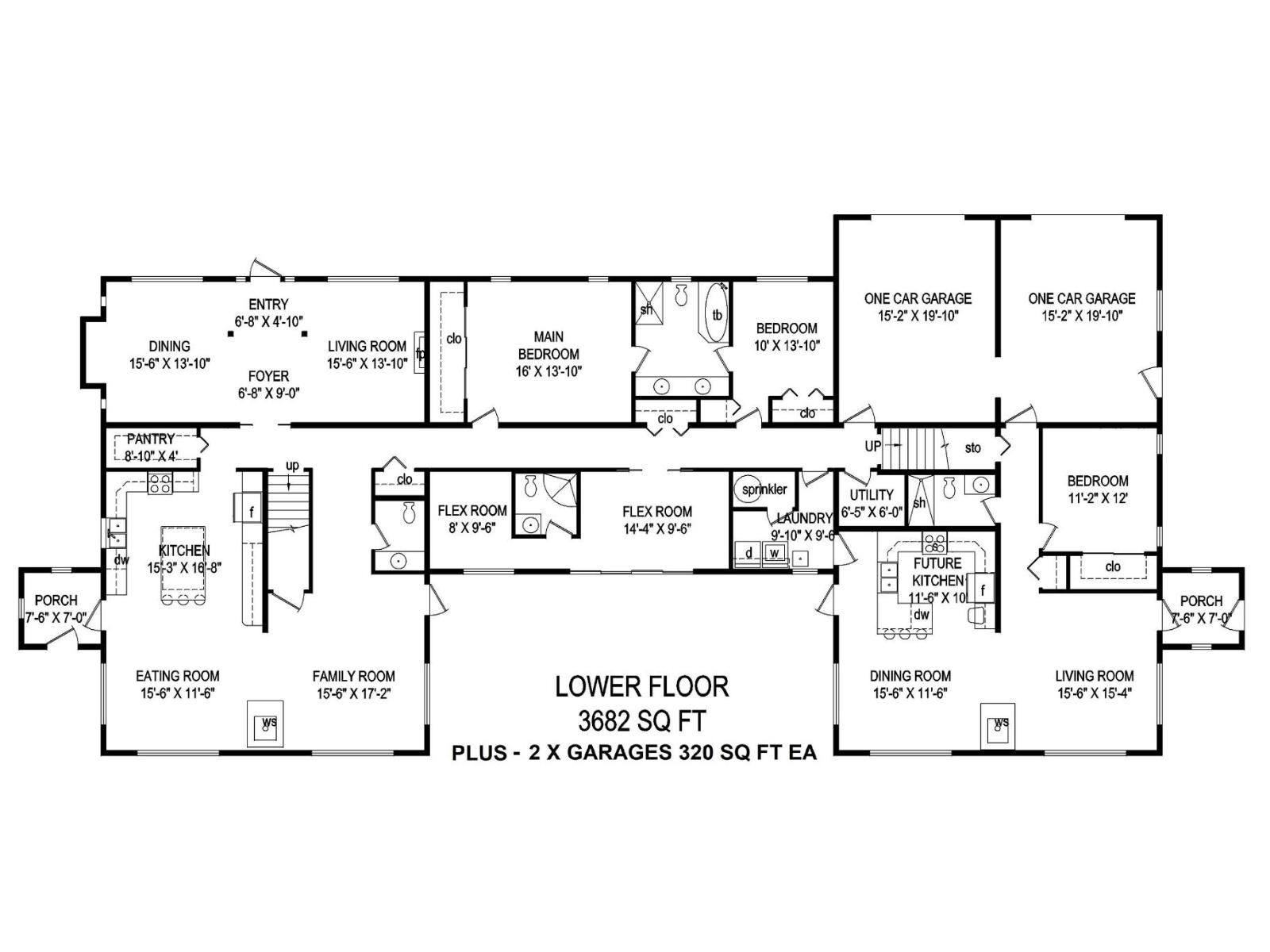
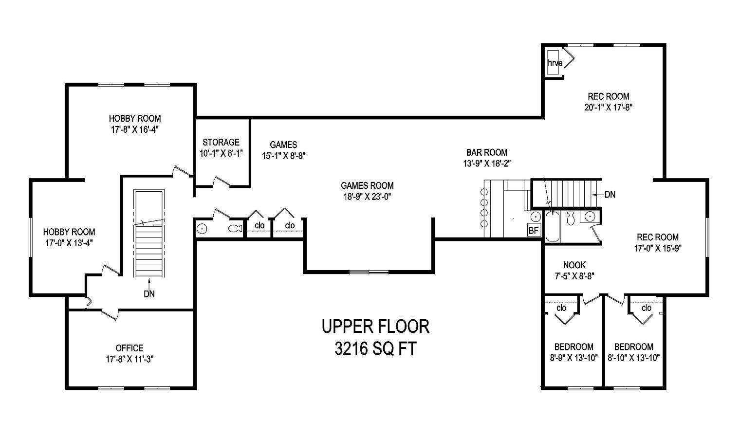
Visit REALTOR® website for additional information. Hire a contractor or roll up your sleeves to complete this custom multigenerational living country estate home with beautiful southern exposure surrounded by permaculture style landscaping. Owner/builders have put heart & soul into building an energy efficient quality home without sparing the details for a bountiful lifestyle. The building permit is active as interior finishing is needed to achieve final occupancy. BC Housing Owner Disclosure Statement with 2/3/10 yr Statutory Protection available. Features incl: 100 amp backup Generator, milled cedar chicken coop & garden planters, 458' drilled well, whole home communications panel, sprinkler system, many building materials. (id:44056)

Property Details

Full Address:
12702 CATHY CRESCENT, Mission, British Columbia
Price:
$ 1,925,000
MLS Number:
R3093548
List Date:
February 25th, 2026
Lot Size:
97060 sq.ft.
Year Built:
2016
Taxes:
$ 8,652
Listing Tax Year:
2025

Interior Features

Bedrooms:
5
Bathrooms:
6
Appliances:
Washer, Refrigerator, Central Vacuum, Dishwasher, Stove, Dryer, Water Treatment, Storage Shed, Garage door opener
Interior Features:
Shared Laundry
Heating:
Baseboard heaters, Electric, Natural gas, Wood
Fireplaces:
1
Basement:
None, Unknown, Unknown

Building Features

Architectural Style:
Other
Sewer:
Septic tank
Water:
Drilled Well
Garage:
Garage, Open, RV
Garage Spaces:
2
Ownership Type:
Condo/Strata
Taxes:
$ 8,652

Floors

Finished Area:
6898 sq.ft.

Land

Lot Size:
97060 sq.ft.
Road Type:
Gravel road

Neighbourhood Features

Ratings

Commercial Info

Neighbourhood Details

Location

Mortgage Calculator

powered by Ratehub.ca
Is this your listing?Advertise With Us!

Listing Agent(s)

Listing: Devin Jollimore
PG Direct Realty

Similar Listings

Copyright © Real Estate Guide 2021 | Legal Sitemap
Area Modal Trigger
X