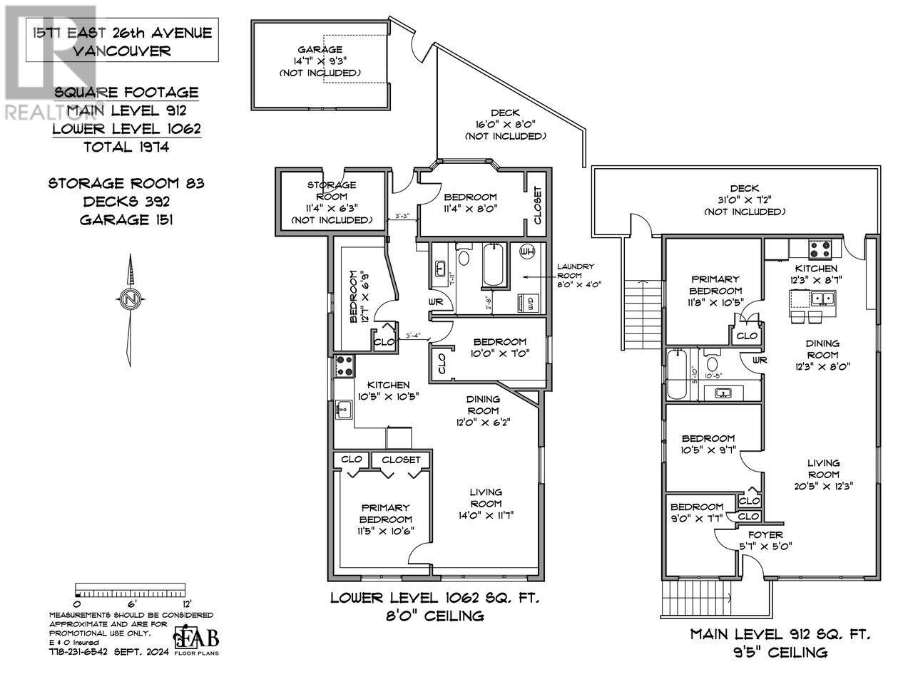
3687 E 26TH AVENUE, Vancouver
$1,399,000MLS® R3078408
3 Beds
2 Baths
1717 SqFt

