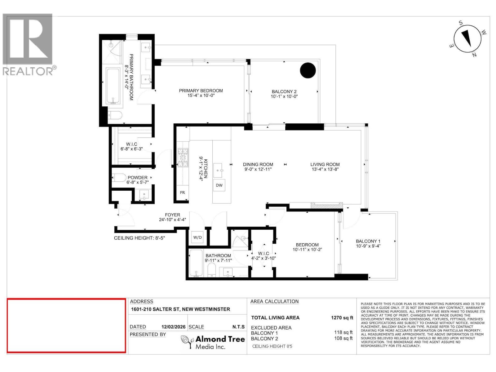
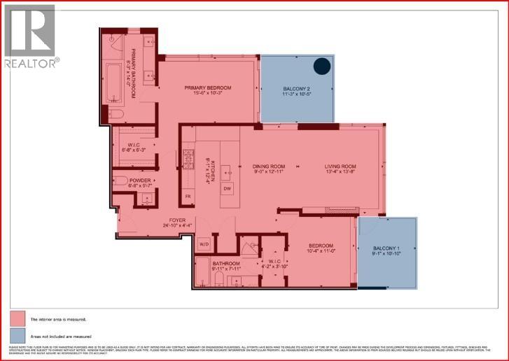
1307 823 CARNARVON STREET, New Westminster
$749,000MLS® R3065452
2 Beds
2 Baths
884 SqFt

