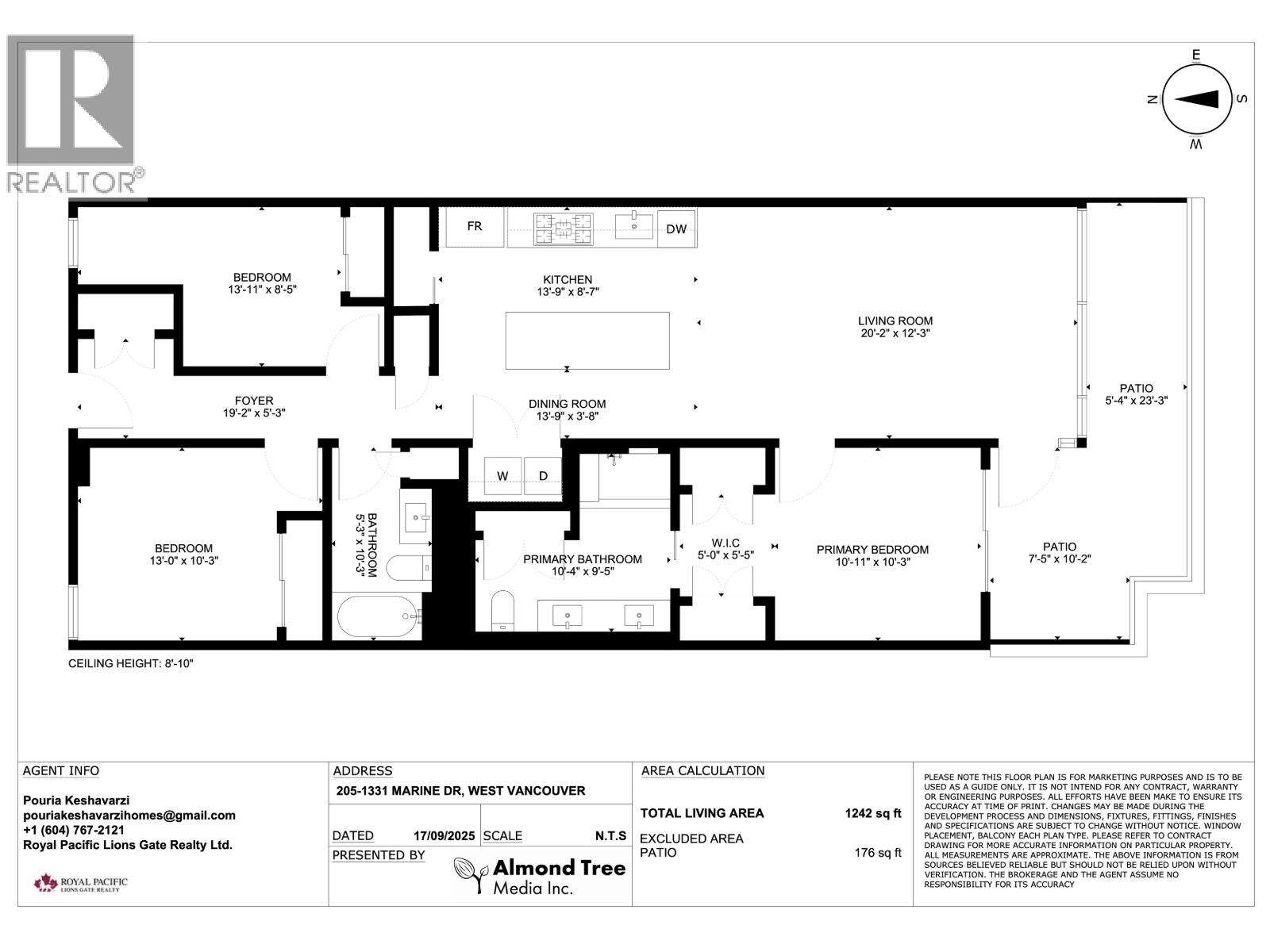
205 1331 MARINE DRIVE, West Vancouver
$1,948,000MLS® R3085882
3 Beds
2 Baths
1258 SqFt

