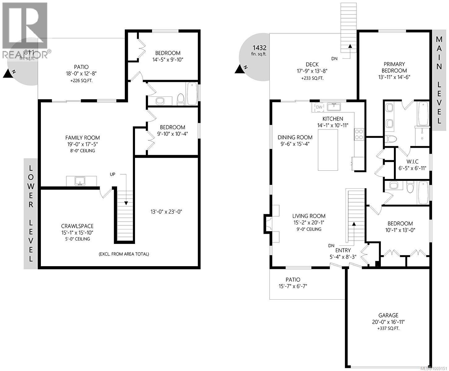
Open Sunday May 3rd 11-1 , 3 to View at open all immediate possession, Located in a quiet cul-de-sac with views of Sooke Harbour and Straits of Juan de Fuca, this impressive Brand New 4+ Bedroom 3 bath Rancher with walk out basement is ready for immediate possession. On the main floor your immediately impressed with Open Floorplan the classy Hardwood Floors the living room with Gas FP with smartly done built-in cabinets, gourmet style kitchen with granite countertops, classy island, master bedroom has great views, good-sized walk in and great ensuite, 2nd bedroom is good sized on main. Down has a huge Rec room area, built-in bar, 2 other bedrooms ( potential suite? ) 4 pce bathroom, and massive crawl space entrance for storage, listed at 1,274,900 plus GST. (id:44056)

Property Details

Full Address:
2605 Nickson Way, Sooke, British Columbia
Price:
$ 1,274,900
MLS Number:
1026293
List Date:
February 18th, 2026
Neighbourhood:
Sunriver
Lot Size:
6534 sq.ft.
Year Built:
2025
Taxes:
$ 2,673

Interior Features

Bedrooms:
4
Bathrooms:
3
Air Conditioning:
Air Conditioned
Heating:
Heat Pump, Natural gas
Fireplaces:
1

Building Features

Zoning:
Residential
Garage Spaces:
3
Ownership Type:
Freehold
Taxes:
$ 2,673

Floors

Finished Area:
2243 sq.ft.

Land

View:
Mountain view, Ocean view
Lot Size:
6534 sq.ft.

Neighbourhood Features

Ratings

Commercial Info

Neighbourhood Details

Location

Mortgage Calculator

powered by Ratehub.ca
Is this your listing?Advertise With Us!

Listing Agent(s)

Listing: Shayne Fedosenko
Maxxam Realty Ltd.

Similar Listings

Copyright © Real Estate Guide 2021 | Legal Sitemap
Area Modal Trigger
X