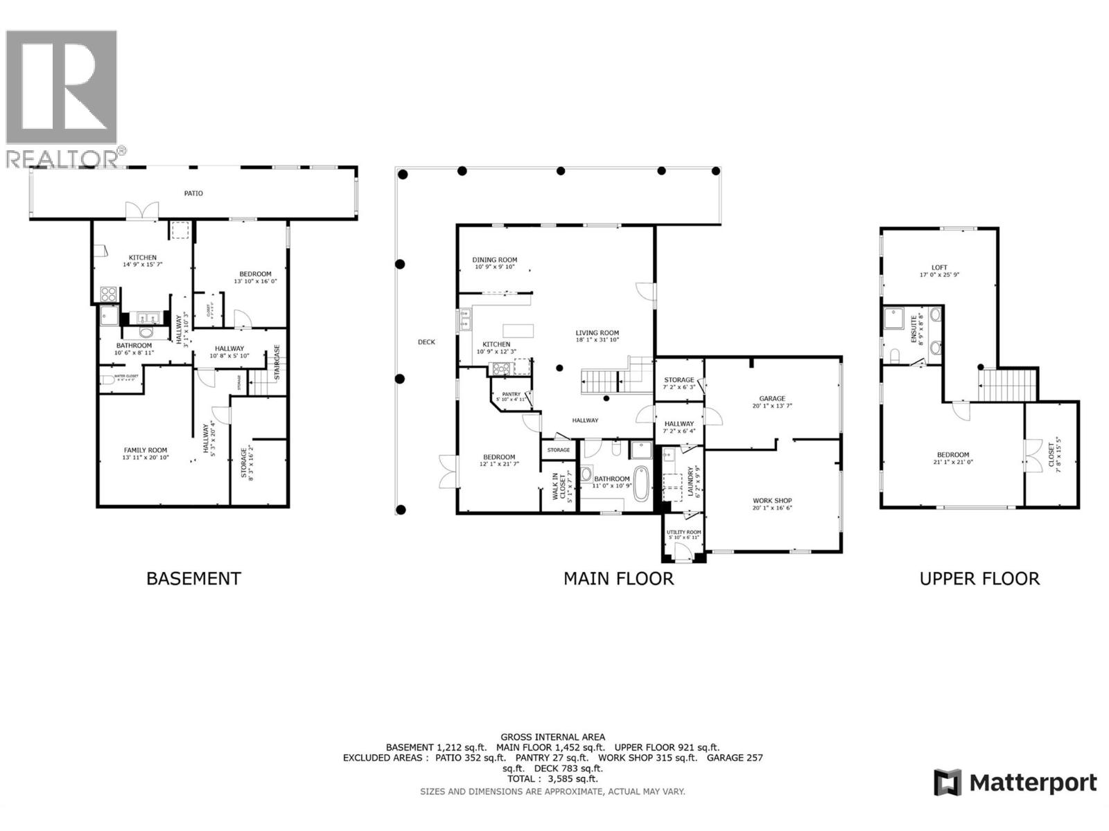
8 WOOD DUCK Way, Osoyoos
$809,900MLS® 10369716
4 Beds
4 Baths
2448 SqFt

