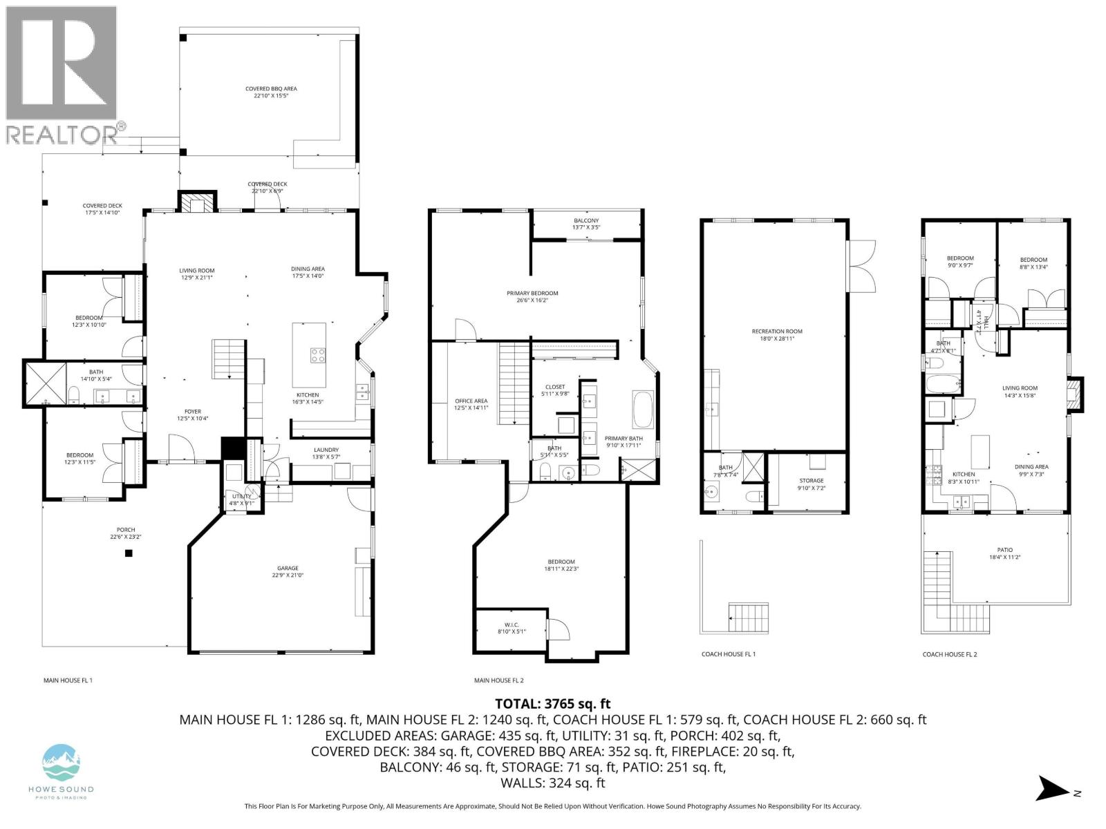
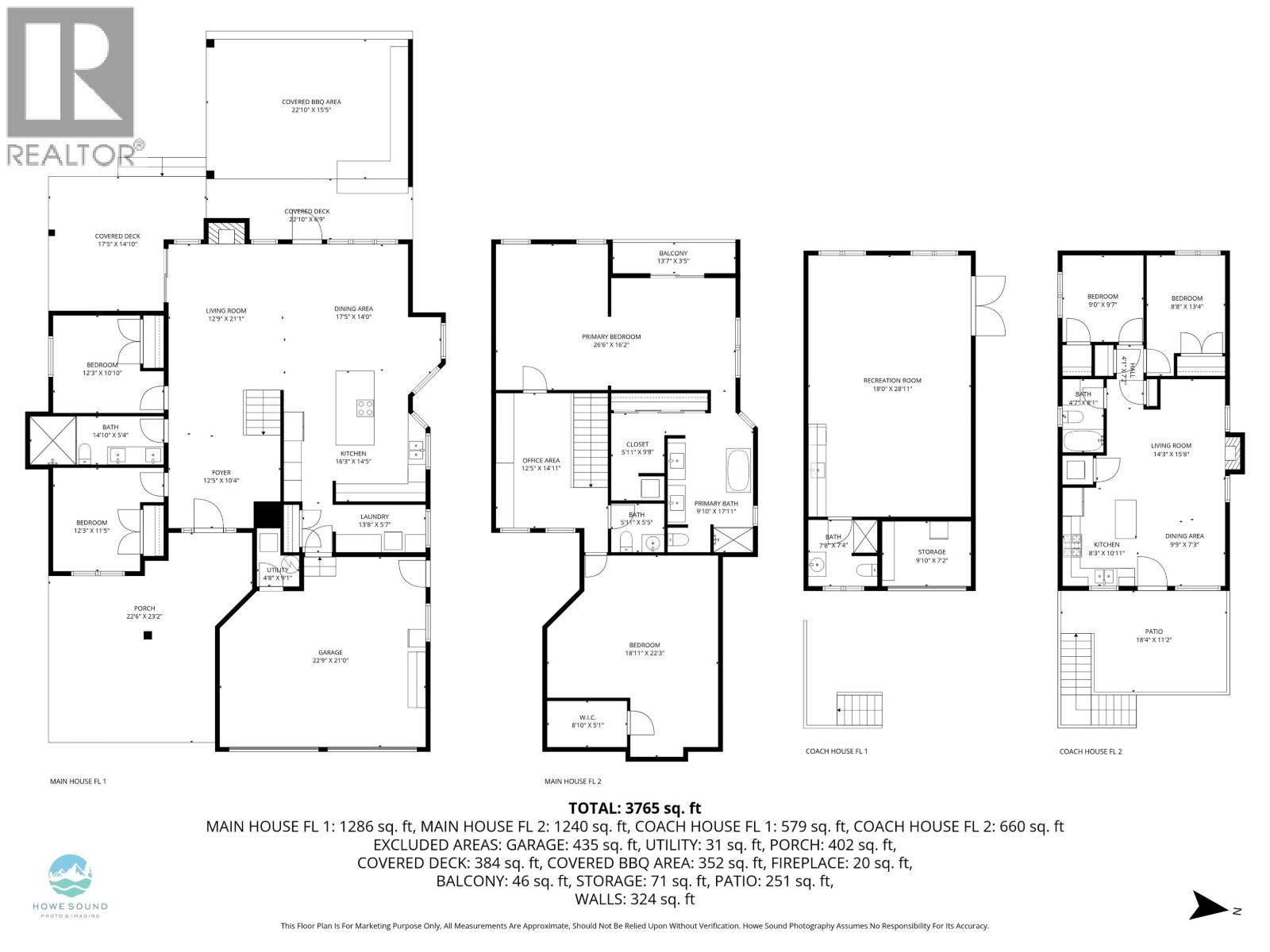
1020 JAY CRESCENT, Squamish
$2,598,000MLS® R3094691
7 Beds
7 Baths
4942 SqFt

