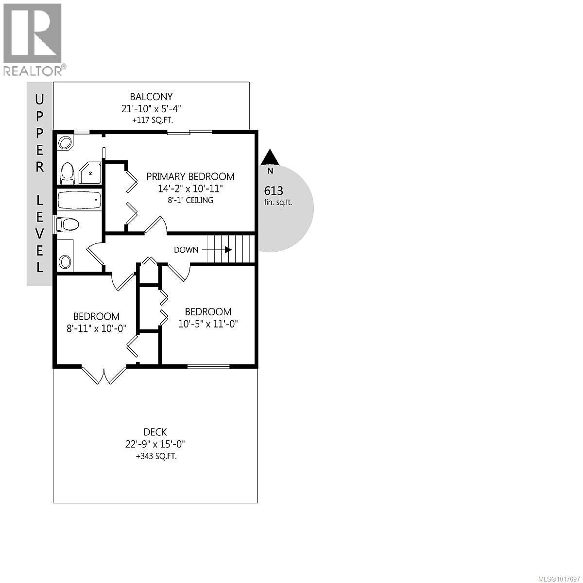
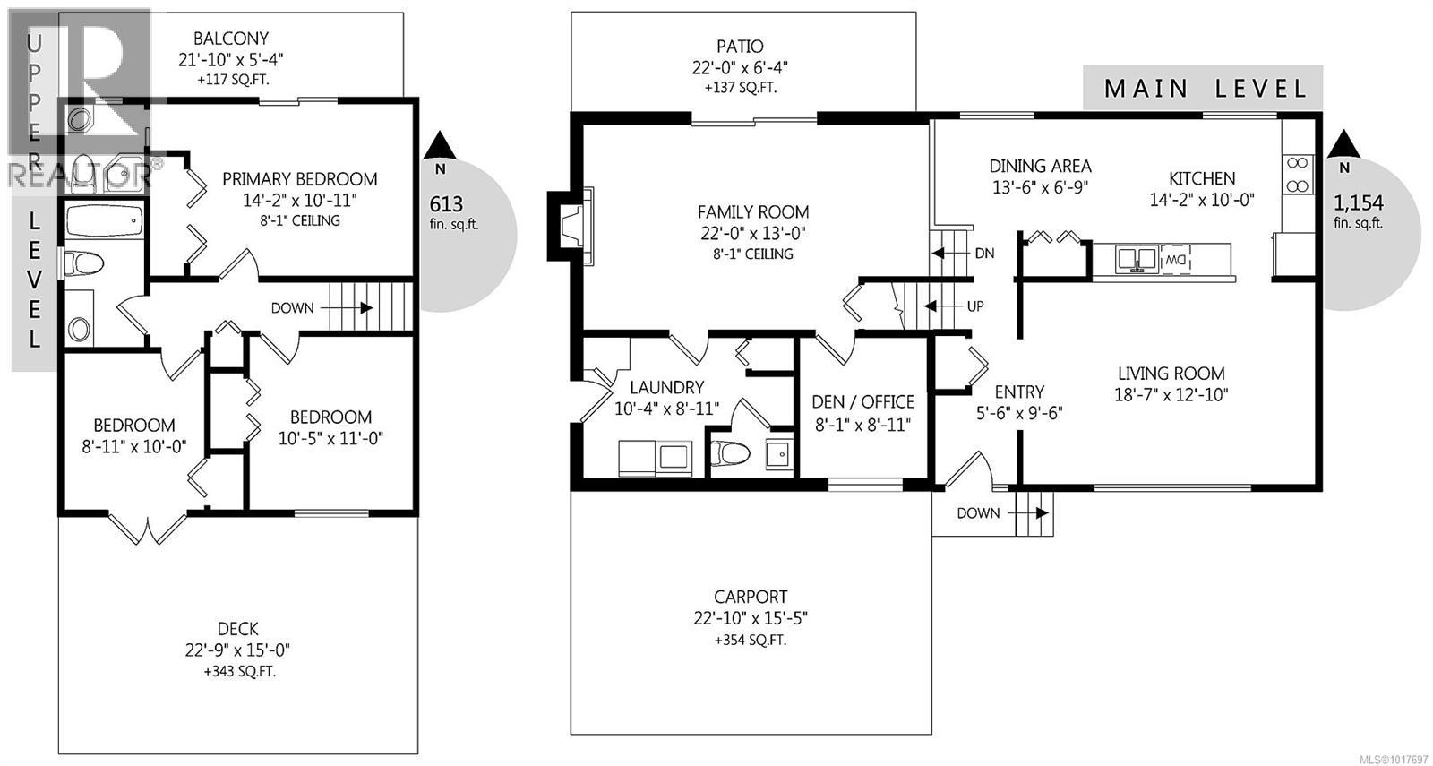
193 Memorial Ave, Parksville
$1,295,000MLS® 1008802
2 Beds
1 Baths
1628 SqFt

