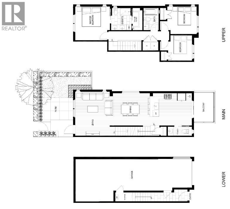
37 DEERWOOD PLACE, Port Moody
$1,360,000MLS® R3100354
3 Beds
3 Baths
2145 SqFt

