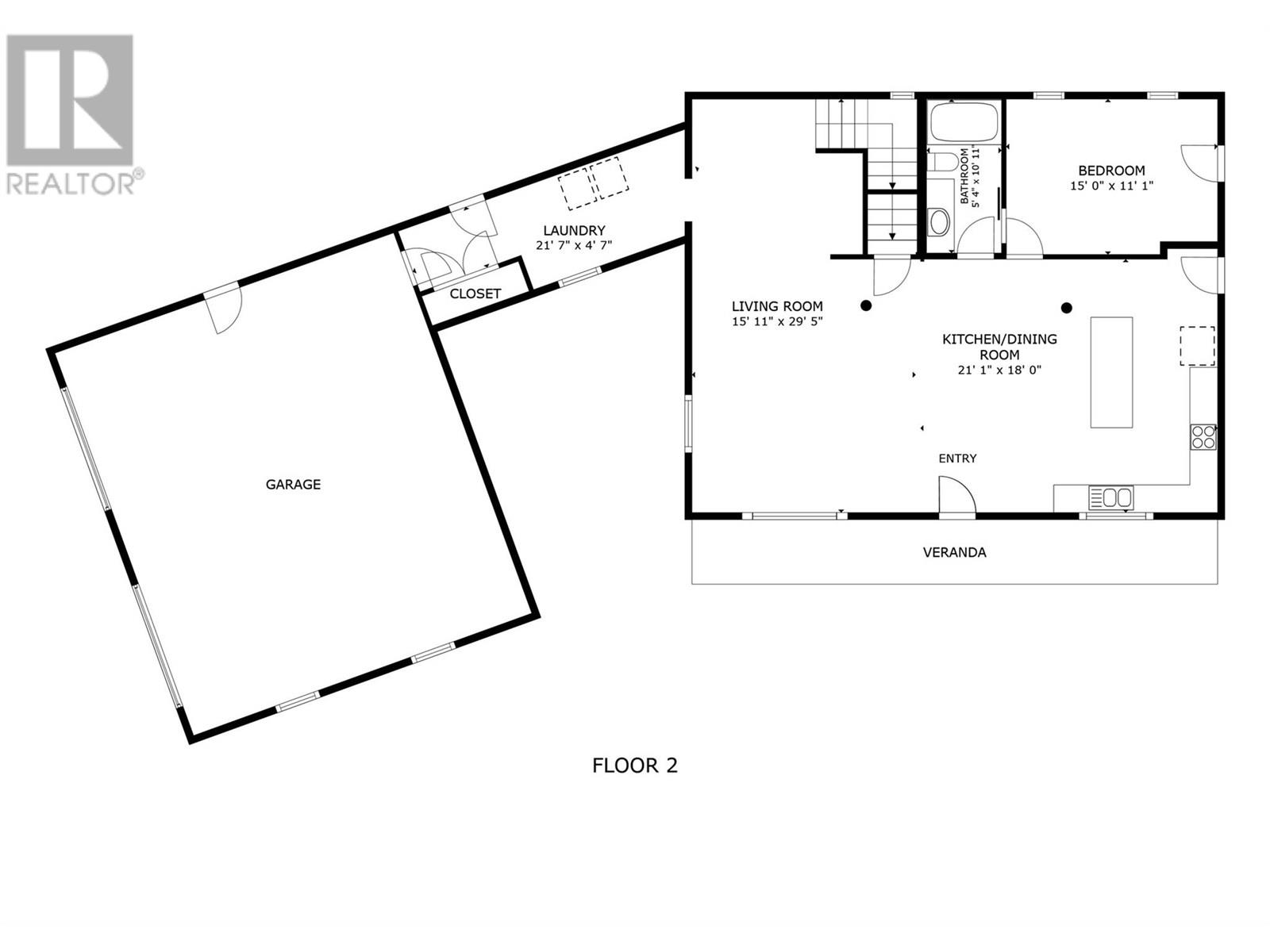
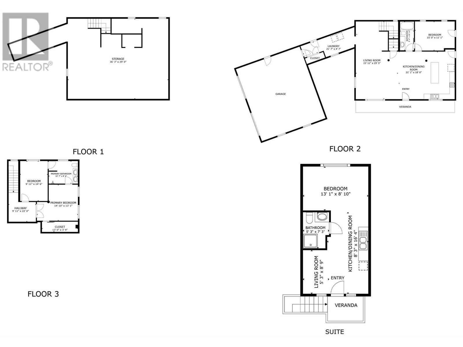
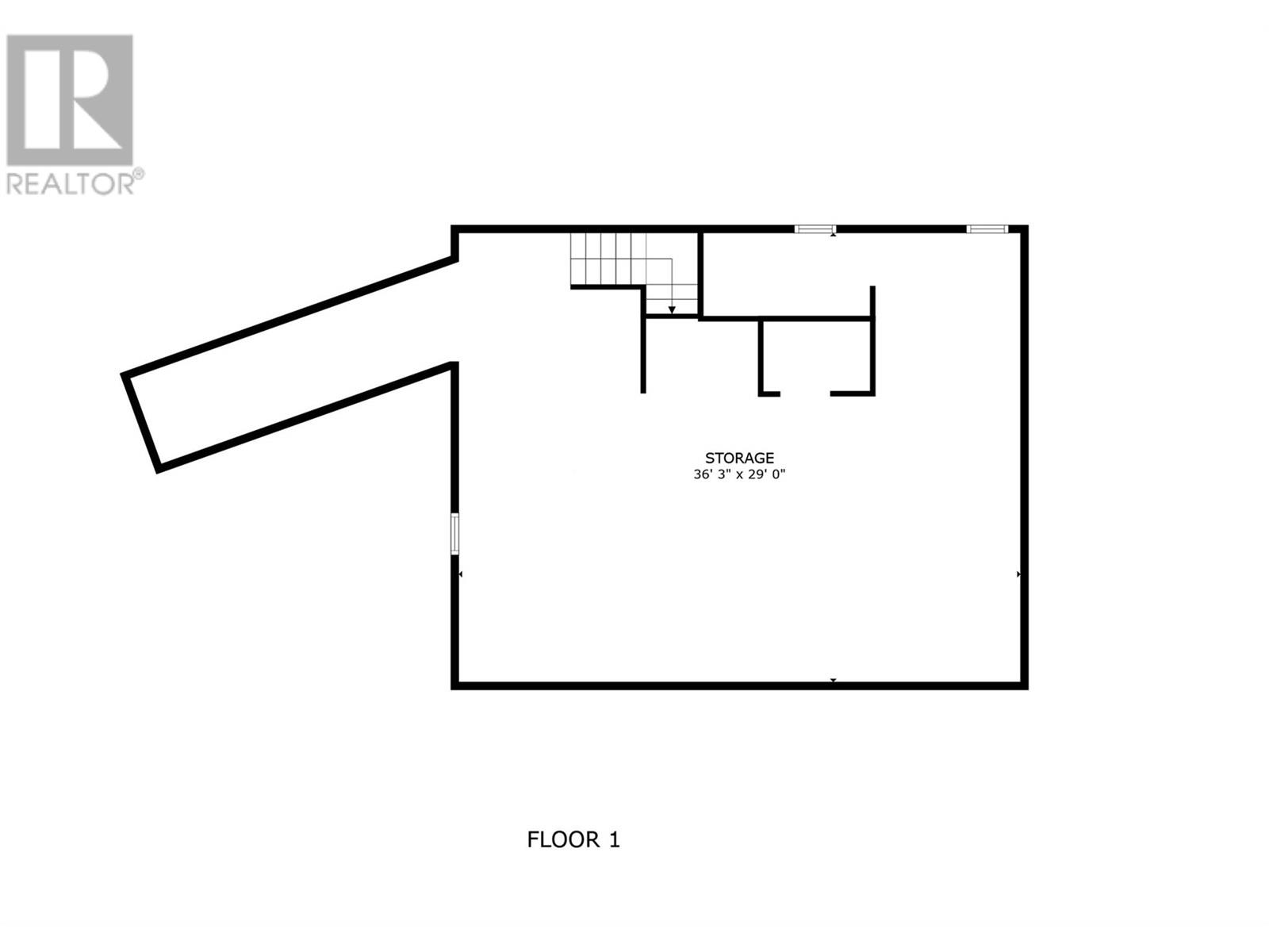
460 Crestview Drive, Coldstream
$1,345,000MLS® 10371136
4 Beds
5 Baths
3920 SqFt

