11815 Grant Avenue Unit# 103, Summerland
$619,900MLS® 10379085
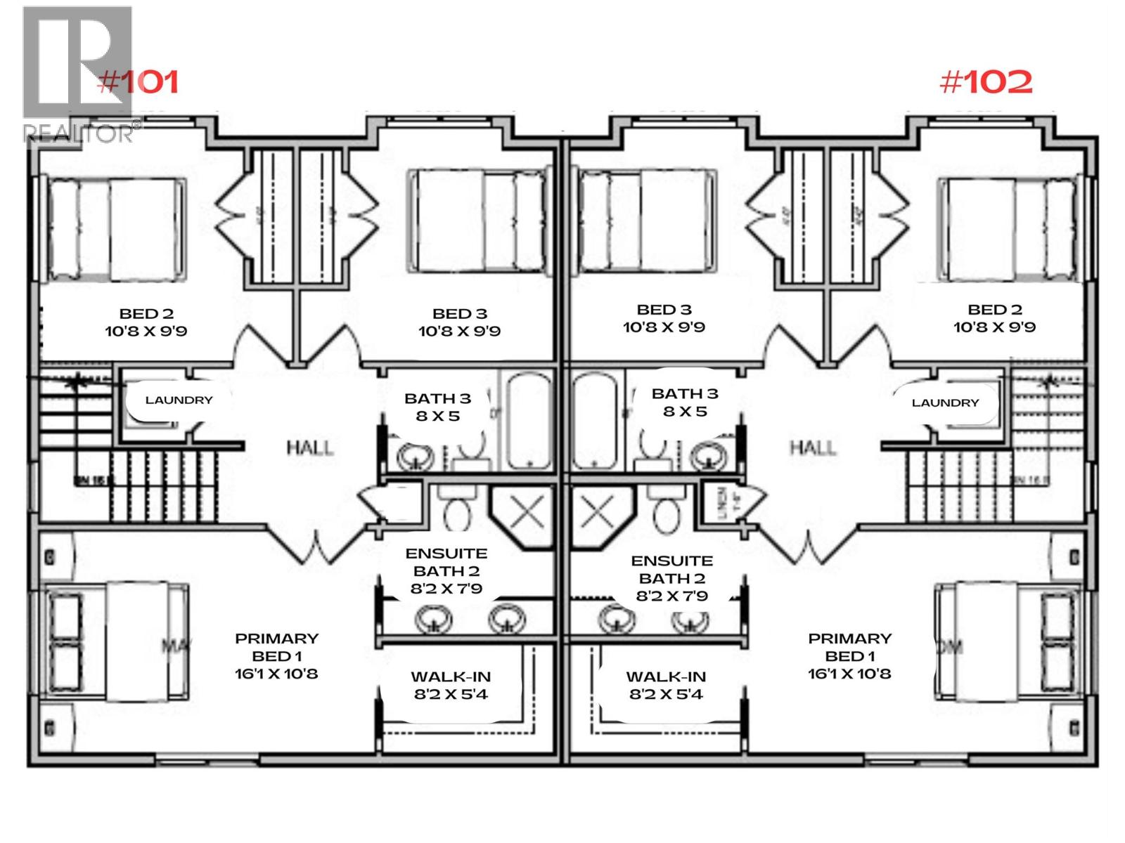
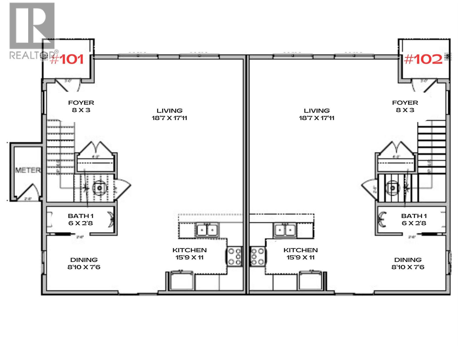
3 Beds
3 Baths
1561 SqFt

