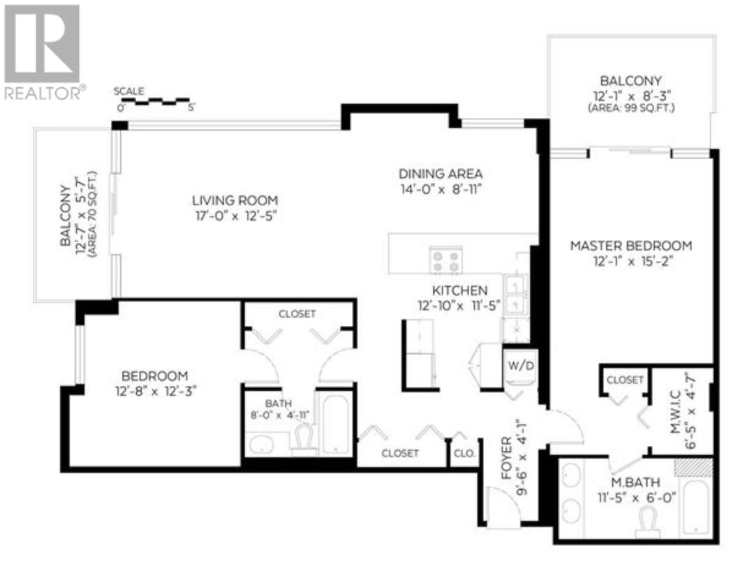
4605 4880 LOUGHEED HIGHWAY, Burnaby
$648,000MLS® R2972472
1 Beds
1 Baths
568 SqFt

