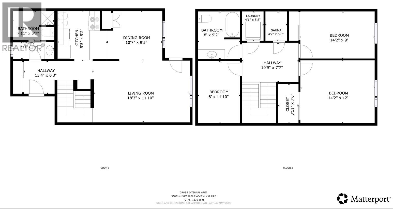
*Great views! *Great layout! *Great condition! Welcome to #7 Radium Hill. You are up on top (no basement bedrooms here) with lots of sunshine (south facing covered deck) and awesome views of the Radium Golf Course, with glimpses of the Purcell and Rocky Mountains. This unit has had an extensive renovation (kitchen, bathrooms, flooring, paint) about ten years ago and has been lightly used (not used for short term rentals). This the largest layout, featuring three full bedrooms, sauna, and two lofts (perfect for sleeping the entire extended family). Whether this is a recreational retreat and the chance to make memories in the mountains, or even viable for full time living- don't hesitate on this quality offering! (id:44056)

Property Details

Full Address:
8040 Radium Golf Course Road Unit# 7, Radium Hot Springs, British Columbia
Price:
$ 399,000
MLS Number:
10371663
List Date:
December 30th, 2025
Neighbourhood:
Radium Hot Springs
Year Built:
1981
Taxes:
$ 1,302

Interior Features

Bedrooms:
3
Bathrooms:
2
Heating:
Baseboard heaters

Building Features

Architectural Style:
Multi-level
Storeys:
3
Sewer:
Municipal sewage system
Water:
Private Utility
Garage:
Additional Parking
Ownership Type:
Condo/Strata
Taxes:
$ 1,302
Stata Fees:
$ 512

Floors

Finished Area:
1578 sq.ft.

Land

Neighbourhood Features

Amenities Nearby:
Rentals Allowed

Ratings

Commercial Info

Neighbourhood Details

Location

Mortgage Calculator

powered by Ratehub.ca
Is this your listing?Advertise With Us!

Listing Agent(s)

Listing: Gerry Taft
eXp Realty
Co-Listing: Robin Shmigelsky
eXp Realty

Similar Listings

Copyright © Real Estate Guide 2021 | Legal Sitemap
Area Modal Trigger
X